À Treytorrens, charmant village de campagne vaudoise, découvrez ce nouveau projet de 2 villas individuelles neuves de 4.5 pièces, idéalement situé au calme, tout en restant à proximité directe de Payerne et des pôles économiques régionaux.
La construction a déjà débuté, offrant aux futurs acquéreurs la sécurité d’un projet concret et maîtrisé.
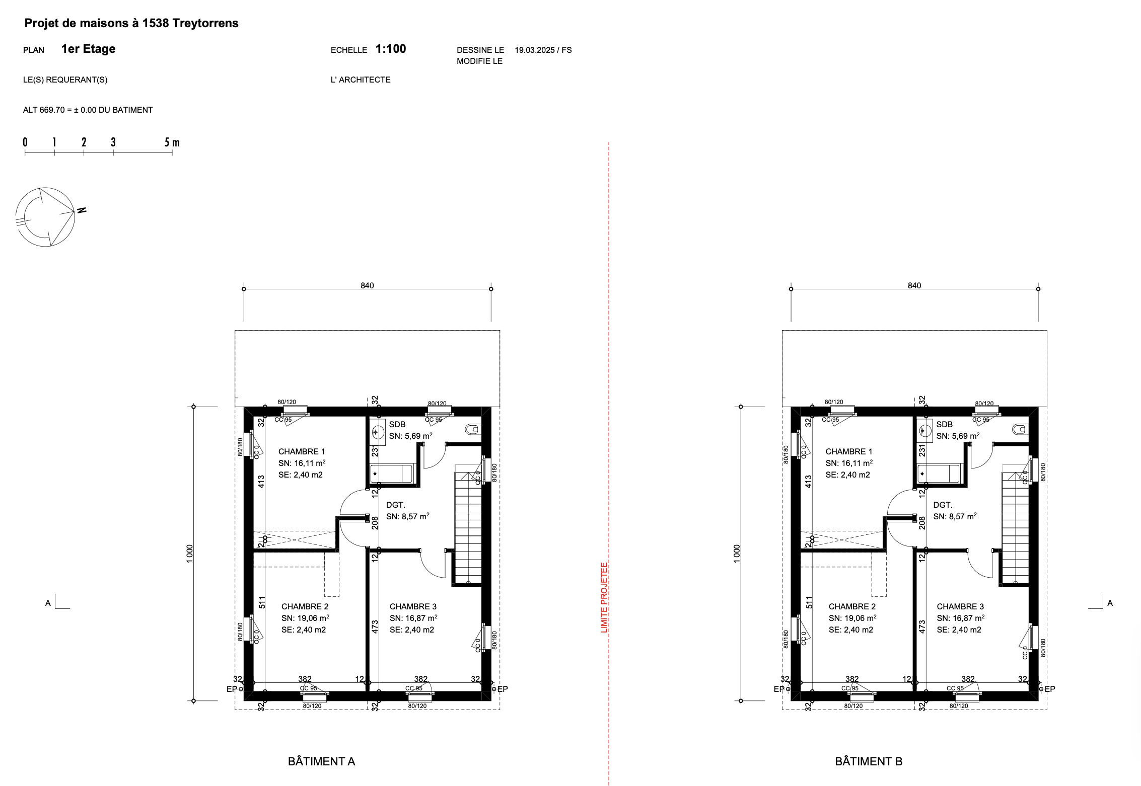
Une conception pensée pour la vie de famille
Chaque villa se développe sur deux niveaux, avec une distribution fonctionnelle et lumineuse :
Rez-de-chaussée :
– Spacieuse pièce de vie avec cuisine ouverte sur séjour d’environ 50 m², baignée de lumière et avec accès direct à la terrasse et au jardin
– Terrasse extérieure d’env. 21 m², idéale pour les repas en famille
– WC visiteurs avec douche
– Buanderie indépendante
Étage
– Trois chambres généreuses (env. 16 à 19 m²), parfaites pour une famille
– Salle de bains avec baignoire
Pensées pour accueillir une vie de famille harmonieuse, ces villas réunissent espace, luminosité et sérénité dans un environnement privilégié. Ici, chaque détail a été conçu pour offrir un quotidien agréable, entre nature, tranquillité et accès facile aux commodités. Une opportunité rare pour s’installer durablement à Treytorrens et construire un véritable chez-soi.
—
Treytorrens est une charmante commune située dans le canton de Vaud, en Suisse. Nichée dans la région de la Broye-Vully, elle offre un cadre de vie paisible et bucolique, idéal pour les familles et les amoureux de la nature.
Grâce à sa proximité avec les principales infrastructures routières et ferroviaires, Treytorrens bénéficie d’un accès facile aux villes voisines tout en conservant le charme authentique et tranquille d’un village suisse. La commune est desservie par le bus. Aussi une boulangerie itinérante se déplace dans la commune.
- Nombre de pièces : 4.5 pces
- Cave : Non
- Galetas : Non
- Places de parc : 3
- Garage : 0
- Type de Chauffage : PAC
Alexandre Vonlanthen
Conseiller immobilier
Alexandre Vonlanthen
Conseiller immobilier
- Phone:+41 26 564 00 50
- Email:alex@scobi.ch
Arnaud Couzinié
Conseiller immobilier
Arnaud Couzinié
Conseiller immobilier
- Phone:+41 26 564 00 54
- Email:arnaud@scobi.ch
